Thiết kế biệt thự vườn 1 tầng tân cổ điển là công trình của một gia đình giàu có, muốn sống gần gũi với thiên nhiên tại vùng đất Nhơn Trạch, Đồng Nai. Với tổng diện tích hơn 300m2, trong đó không gian sàn là 240m2 đã giúp kiến trúc sư thoải mái bố trí sơ đồ các khu vực chức năng như phòng khách, phòng ăn, phòng ngủ và phòng thờ.
Nếu bạn đang có ý định làm nhà, nhưng chưa tìm được cho gia đình mình 1 mẫu biệt thự vườn phong cách Châu Âu thì công trình sau sẽ là gợi ý hay dành cho bạn.
Thiết kế kiến trúc biệt thự vườn 1 tầng tân cổ điển

Với mỗi khách hàng, họ có một sở thích và gu thẫm mỹ khác nhau vậy nên khi lên phương án thiết kế các kiến trúc sư dành rất nhiều thời gian để trò chuyện, tìm hiểu sở thích cũng như mong muốn của gia chủ và từng thành viên.
Cũng sau thời gian khảo sát, đo đạc nhận thấy đất nhà gia chủ không quá cứng, sợ sẽ ảnh hưởng đến chất lượng công trình về sau nên kiến trúc sư chọn kiểu móng ép cọc, xây cao. Phần chân móng sẽ được ốp đá, lan can và bậc tam cấp đi lên có độ cao tương xứng với chiều cao của sàn nhà.
Toàn bộ không gian kiến trúc biệt thự vườn được chia thành 3 khoang rõ ràng, giống với những ngôi nhà ở vùng nông thôn trước. Hai mặt biệt thự đều có cửa sổ để lấy sáng và nhận gió thoáng.

Hệ hoa văn, phù điêu trong biệt thự vườn 1 tầng tân cổ điển được trang trí tinh xảo, làm chủ yếu bằng tay cho thấy mức độ đầu tư cũng như gu thẫm mỹ tinh tế của người sở hữu.
Màu sắc chủ yếu sử dụng cho biệt thự vườn chính là gam màu trắng, đây là màu sắc thể hiện sự quyền uy, sang trọng đồng thời góp phần làm nổi bật hệ hoa văn phù điêu và mái ngói màu xanh đen bên trên.
Bên cạnh tường bê tông và cột iconic thỉnh thoảng kiến trúc sư cũng điểm xuyến thêm hệ cột đá để tăng độ vững chãi và thêm nét thẫm mỹ cho công trình.

Cũng giống như bao mẫu biệt thự vườn khác, xung quanh căn biệt thự được các kiến trúc sư bố trí cây cảnh và các loại cây ăn trái, vừa có tác dụng làm mát đồng thời tăng thêm khoảng trống thú vị để chủ nhà thảnh thơi, tận hưởng cuộc sống.
Hệ thống mái thái của biệt thự 1 tầng giúp công trình cân đối nhất so với các kiểu mái khác. Ngoài ưu điểm của mái là điều hòa không khí, giúp căn nhà “ấm về mùa đông, mát về mùa hè”. Kiểu mái này cũng góp phần khiến công trình cao hơn và thoáng hơn so với những kiểu mái khác.
Tọa lạc trên vùng đất khí hậu ôn hòa, cây cối phát triển xanh tươi. Công trình biệt thự nhà vườn là địa điểm đáng sống hơn bao giờ hết. Với không gian sống hòa quyện với thiên nhiên đất trời. Với những khu nhà chức năng đầy đủ tiện nghi.
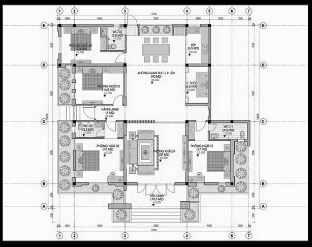
Bố trí công năng biệt thự vườn 1 tầng tân cổ điển

- Với diện tích sàn rộng, kiến trúc sư thoải mái bố trí các phòng để các thành viên trong nhà dễ dàng trong sinh hoạt hàng ngày.
- Không gian đầu tiên là phòng khách rộng 29m2, để thiên nhiên và ánh sáng có thể tràn vào phòng bất cứ lúc nào nên phòng khách được đặt ngay sau sảnh vào.
- Phía sau là phòng ăn rộng, đây cũng là nơi các thành viên trong biệt thự vườn 1 tầng tân cổ điển có thể tụ tập chuyện trò hoặc các con của chủ nhà có thể học bài, giải trí tạo sự gắn kết giữa các thế hệ trong nhà.
- Một phòng thờ rộng 16,5m nằm tách biệt so với các phòng khác, để đảm bảo sự thông thoáng. Cửa phòng thờ hướng ra sảnh chính và tránh các hướng đại kỵ.
- Bếp nấu rộng 15,5m thoải mái để người nội trợ có thể nấu những món ăn ngon, đảm bảo sức khỏe cho các thành viên trong gia đình.
- 4 phòng ngủ đẹp dành cho biệt thự có diện tích lớn nhỏ khác nhau, tùy theo mức độ quan trọng của căn phòng. Lớn nhất là phòng ngủ master, rộng 19m và có nhà vệ sinh riêng.
- Phòng ngủ 1, dành cho ông bà rộng 17m2 và cũng có nhà vệ sinh để thuận tiện cho ông bà di chuyển.
- Hai phòng ngủ của hai cô con gái sử dụng chung một nhà vệ sinh nhằm tiết kiệm diện tích, tạo sự gắn kết giữa hai chị em.
Thiết kế nội thất biệt thự vườn 1 tầng tân cổ điển
Mẫu thiết kế biệt thự vườn 1 tầng đẹp này đã quá quen thuộc với người dân Việt ta nhưng tùy theo tuổi chủ nhà, gu thẫm mỹ mà cách bố trí nội thất bên trong sẽ có sự khác biệt. Sau đây mời bạn cùng kiến trúc xây dựng roman khám phá tiếp không gian nội thất của công trình này nhé!
Nội thất phòng khách biệt thự nhà vườn
Lối đi xung quanh được ốp gỗ, giống như những cây cầu xây vắt qua khu vườn để chủ nhà tránh xa ồn ào, khói bụi.

Một góc nhìn khác của lối đi xung quanh vườn. Bộ bàn ghế bằng đá để chủ nhà ngồi uống trà, mời bạn bè đến trò chuyện, tâm tình
Đối với khu vực quan trọng như phòng khách, kiến trúc sư đặt vào căn phòng một bộ sofa màu xám cao cấp, tạo thành điểm nhấn đắt giá để làm nên nét đẹp đẳng cấp của không gian nội thất.
Nội thất bếp và phòng ăn biệt thự vườn 1 tầng tân cổ điển
Rèm cửa hai lớp giúp điều chỉnh ánh sáng trong phòng ổn định.Sàn và tường ốp đá màu trắng để bắt sáng đồng thời tăng cảm giác rộng rãi cho căn phòng.
Tủ bếp chữ U có mặt làm bằng đá để dễ dàng làm sạch, giúp người nội trợ có thêm thời gian tận hưởng cuộc sống.

Hệ lam gỗ hình dạng lá sách đóng vai trò như một chiếc máy hút gió, giúp phòng khách lẫn phòng ăn đều nhận được gió.
Nội thất phòng thờ biệt thự vườn 1 tầng tân cổ điển
Vốn là người đi theo Phật và thờ cúng ông bà vậy nên khi thiết kế biệt thự, gia chủ không quên yêu cầu kiến trúc sư bố trí một phòng thờ nằm ở vị trí đắc địa trong nhà.
Mỗi ngôi nhà được ví như một không gian nghệ thuật và cách mà các kiến trúc sư ứng xử với mỗi công trình khác nhau sẽ giúp họ làm giàu thêm vốn sống cũng như vốn kinh nghiệm để ngày càng tạo ra nhiều công trình đẹp, nhiều tổ ấm tràn ngập tiếng cười hơn. Khu vực sân vườn cạnh phòng ngủ này là một ví dụ như thế.
.Các loại hoa và cây trồng đều được sắp xếp dựa trên sở thích của gia chủ.
Ngoài hoa và bonsai trang trí, thỉnh thoảng chủ nhà còn có thể trồng các loại rau, củ, quả để cải thiện bữa ăn. Hàng ngày chủ nhà và các con mình đều dành thời gian để tưới tiêu cho vườn, chăm

sóc cây, nhìn cây lớn lên mỗi ngày cũng là cách họ tận hưởng cuộc sống.
Kết luận: Nhiều năm trở lại đây là chứng kiến sự thay đổi liên tục của xu hướng thiết kế nhà ở nói chung và thiết kế biệt thự nói riêng. Thì biệt thự nhà vườn phong cách tân cổ điển vẫn nằm trong số những xu hướng có sự lựa chọn ổn định cùa đại đa số khách hàng nhờ khoảng sống xanh, chi phí đầu tư hợp lý, lại không bị bó buộc theo bất kỳ khuôn mẫu nào, nên các kiến trúc sư có thể thỏa sức sáng tạo vận dụng tinh hoa kiến trúc để thổi hồn cho công trình.
- Các kiến trúc sư tại Thiết kế xây dựng Biệt thự Lâu đài Miền Nam có nhiều kinh nghiệm trong lĩnh vực thiết kế thi công nhà ở với kiến thức chuyên môn và gu thẩm mỹ nghệ thuật cao cam kết sẽ sáng tạo hết mình mang lại không gian sống lý tưởng nhất cho bạn và gia đình.
Hãy liên hệ với chúng tôi để được tư vấn thiết kế biệt thự đẹp và thi công xây dựng lâu đài biệt thự đẹp 3 tầng: 0915.86.63.38
