Đời sống ngày càng phát triển, kéo theo nhu cầu sử dụng công năng của con người ngày càng nhiều. Vậy nên ngoài các tầng nổi bên trên, tầng hầm ra đời để phục vụ tối đa nhu cầu cuộc sống. Dự án biệt thự cổ điển có tầng hầm thiết kế tại Bình Chánh dưới đây là một trong những ví dụ tiêu biểu về việc sử dụng không gian sống hiệu quả và đẳng cấp, biến tầng hầm thành một trong những khu vực quan trọng nhất của căn nhà.
Hình ảnh phối cảnh biệt thự cổ điển có tầng hầm

Những năm gần đây, xu hướng thiết kế biệt thự cổ điển kết hợp với tầng hầm nhanh chóng phát triển. Bởi sự đa dạng của các không gian tầng hầm như trở thành nhà xe, hầm rượu, phòng tập gym……. Chính vì lý do đó, các kiến trúc sư đã lên phương án thiết kế biệt thự có tầng hầm đẹp dùng để làm hầm rượu cho anh Quý.
Căn biệt thự nằm ở ngay lô góc, giáp hai mặt tiền đường nên kiến trúc sư thoải mái khoe được những đường nét mạnh mẽ, sang trọng của công trình. Để xứng tầm với hình khối kiến trúc bên trong, thiết kế biệt thự 4 tầng bọc ngoài bởi dãy tường rào xây gạch trang trí bằng những đường chỉ kẻ ngang tuyệt đẹp. Xen kẽ với bê tông còn là hệ thông lan can sắt, cửa cổng sắt mỹ nghệ hoành tráng, nổi bật đầy ấn tượng bao quanh khuôn viên đất rất rộng.

Đi vào bên trong, bao quanh ngôi nhà là hệ thống sân vườn, tiểu cảnh xanh mát. Với thế đất rộng, gia chủ thoải mái sắp xếp các loại cây ăn trái cũng như cây bonsai, kết hợp với lối đi để có thể thả mình trong khung cảnh thiên nhiên trong lành.
Thiết kế biệt thự cổ điển có tầng hầm còn có phần chân móng được ốp bằng đá tự nhiên. Đây là quyết định hết sức khôn ngoan của các nhà thiết kế bởi đá sẽ giúp công trình tránh được rêu mốc, bụi bẩn bám vào giúp công trình thêm đẳng cấp đồng thời sở hữu vẻ đẹp vượt thời gian.

Cũng giống như bao mẫu biệt thự cổ điển khác, ngoại thất biệt thự được trang trí phào chỉ, hoa văn đắp nổi khá cầu kỳ, đẹp mắt. Hệ thống cột iconic tròn được trang trí tỉ mỉ từ đầu cho đến chân cột mang nét riêng biệt cho các công trình kiến trúc cổ điển phương Tây.
Hệ thống cửa sổ làm bằng kính cường lực, xung quanh bậu cửa tô đậm bằng các hoa văn phù điêu hòa hợp những đường nét kiến trúc của công trình.
Để giảm áp lực cho phòng khách cũng như tiện cho việc di chuyển hàng ngày, biệt thự cổ điển có tầng hầm sử dụng nhiều lối đi xung quanh. Ngoài phòng khách thì còn có thể đi ra từ phòng bếp hay phòng ăn, như vậy các thành viên có thể đi vào nhà mà không cần di chuyển qua lối phòng khách.
Hầu hết các sảnh đều có bậc thang đi lên, số lượng bậc cầu thang tính toán theo cung ” Sinh -Lão- Bệnh- Tử” mang nhiều ý nghĩa về mặt phong thủy. Bên trên sảnh trang trí bởi 4 trụ cột tròn đắp hoa văn nổi quyền thế đỡ mái sảnh với chi tiêt vương miện hoàng gia đầy quyền uy.
Mặt bằng công năng biệt thự cổ điển có tầng hầm tại Bình Chánh
Để xứng tầm với hình khối kiến trúc bên ngoài đồng thời đáp ứng nhu cầu sử dụng của chủ đầu tư, việc bố trí công năng vật dụng bên trong được các kiến trúc sư tính toán tỉ mỉ, chi tiết đặc biệt là khu vực tầng hầm.
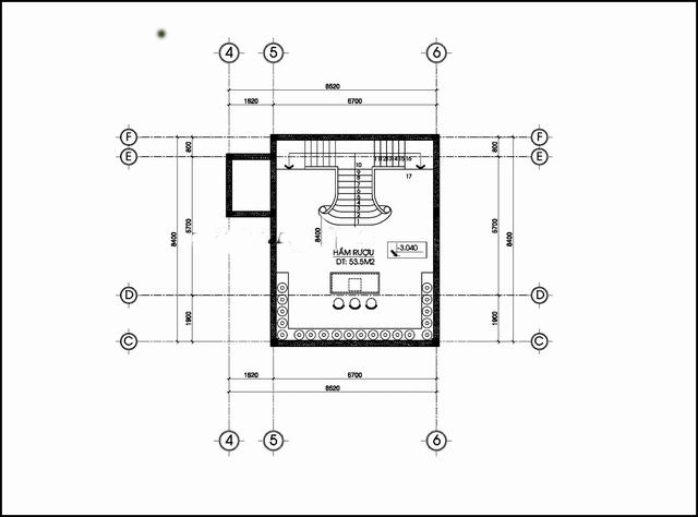
Mặt bằng tầng hầm biệt thự 3 tầng cổ điển

Anh Quý là một người thích sưu tầm rượu và có niềm đam mê đặc biệt với những loại rượu quý. Anh hiểu những chai rượu ngon cần một nhiệt độ chính xác và ổn định để duy trì tính toàn vẹn của chúng. Bởi vậy khi thiết kế tầng hầm đựng rượu các kiến trúc sư đã dành rất nhiều thời gian để tính toán về nhiệt độ, độ ẩm, cách chọn vật liệu, hệ thống sưởi ấm… để tạo nên một tầng hầm đựng rượu hoàn chỉnh.
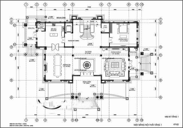
Mặt bằng tầng trệt biệt thự cổ điển có tầng hầm

Tầng trệt gồm: Sảnh chính, phòng khách, phòng ăn, bếp nấu, phòng ngủ 1
- Từ sảnh chính bước vào biệt thự là một khu vực sảnh cùng trụ tròn tạo thành lớp đệm, tạo dòng đối lưu không khí.
- Bên phải sảnh là phòng khách rộng 40m2 sắp xếp cân đối, hài hòa. Một lối đi bên hông phòng khách dành cho các thành viên trong gia đình hoặc người giúp việc có thể di chuyển.
- Hiểu được tầm quan trọng của phòng ăn, căn phòng được các kiến trúc sư sắp xếp ngay phía bên trái sảnh, tạo điều kiện để chủ nhà có thể mời bạn bè, đối tác đến dùng tiệc cùng gia đình.
- Nhà bếp đặt ngay phía sau phòng ăn, thuận tiện cho việc di chuyển và nấu nướng hàng ngày, từ nhà bếp, một lối đi phụ được dẫn ra khu vực vườn cây bên ngoài.
- Phòng ngủ 1 dành cho người giúp việc nghỉ lại.
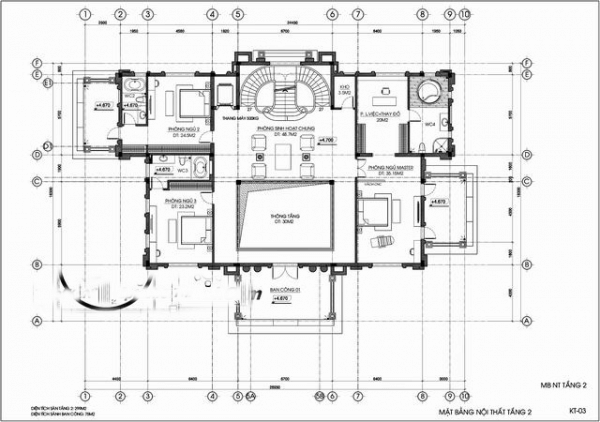
Mặt bằng lầu 1 biệt thự cổ điển có tầng hầm

Lầu 1 gồm: Phòng ngủ master, phòng làm việc, phòng sinh hoạt chung, khoảng thông tầng, phòng ngủ 2, phòng ngủ 3
- Phòng ngủ master bố trí liên thông với phòng làm việc và phòng thay đồ để chủ nhà có thể giải quyết những công việc còn tồn đọng trong ngày.
- Một phòng sinh hoạt chung đặt ngay giữa nhà, hướng ra khoảng thông tầng là nơi cả gia đình anh Quý tụ tập, chuyện trò.
- Phòng ngủ 2 và phòng ngủ 3 dành cho các con của chủ nhà, mỗi phòng đều có nhà vệ sinh riêng để các bé có thể tự lập trong sinh hoạt.
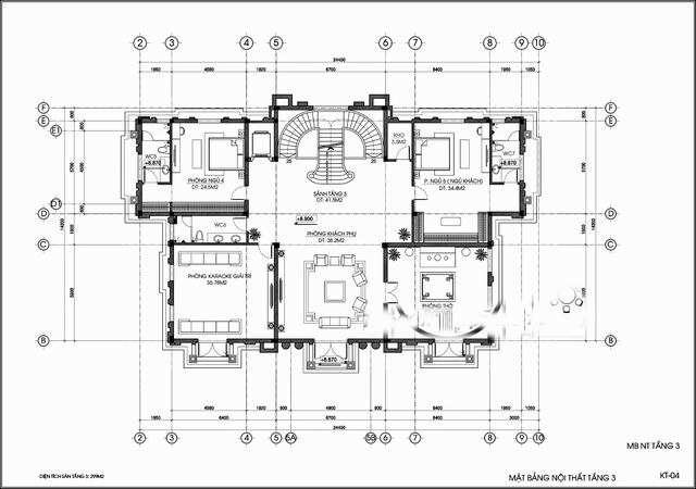
Mặt bằng lầu 2 biệt thự cổ điển có tầng hầm

Lầu 2 gồm: Phòng khách phụ, phòng karaoke, phòng thờ, phòng ngủ khách
- Tại lầu 2 thiết kế biệt thự 4 tầng, kiến trúc sư sắp xếp thêm một phòng khách phụ để các thành viên có thể tiếp đãi bạn bè và những khách thân quen. Với mục đích như vậy nên thiết kế phòng khá ấm cúng, gần gũi.
- Một phòng thờ đặt bên cạnh để anh Quý tưởng nhớ tới ông bà, tổ tiên.
- Phòng karaoke trang bị hệ thống âm thanh hiện đại, mang đẳng cấp Châu Âu nhằm phục vụ nhu cầu ca hát, giải trí. Phòng cũng trang bị hệ thống cách âm hoàn chỉnh, nhằm tránh làm ồn đến cuộc sống của các thành viên khác trong nhà.
- Phòng ngủ 4 và phòng ngủ dành cho khách đặt đối diện hai bên cầu thang.
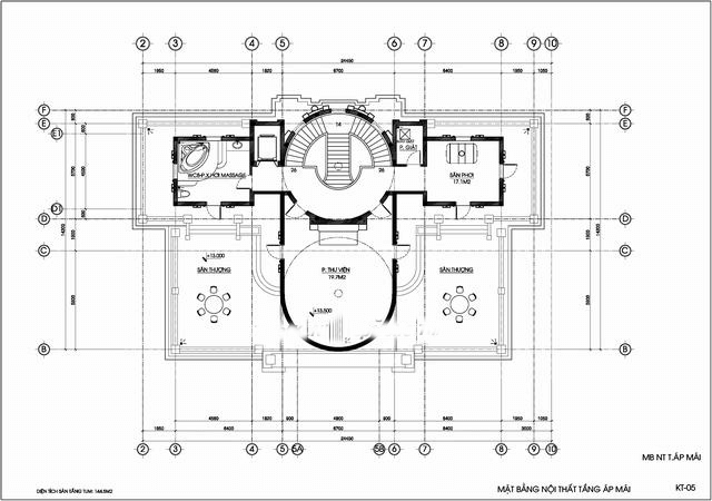
Mặt bằng tầng áp mái biệt thự cổ điển có tầng hầm

Tầng áp mái gồm: Sân thượng, thư viện, phòng giặt, sân phơi, phòng xông hơi
- Kiến trúc sư tận dụng khu vực sân thượng để đặt bàn ghế, và bố trí cây cảnh giúp gia chủ thư giãn và có thể ngắm toàn cảnh thành phố từ trên cao.
- Bên trong mái vòm là phòng thư viện rộng gần 80m2, nơi trưng bày tất cả những tác phẩm văn học và sách khoa học mà anh Quý đã dày công sưu tập.
- Sân phơi đặt cạnh phòng giặt để tiện cho việc xử lý cung cấp nước cũng như chống thấm.
Bố trí nội thất biệt thự cổ điển có tầng hầm
Các chi tiết trang trí phòng khách biệt thự cổ điển nhà anh Quý đánh giá cao bởi tính thẩm mỹ, cũng như tương đồng với các chi tiết ngoại thất của ngôi nhà.
Sử dụng phào chỉ, gỗ ốp tường đem đến sự trọn vẹn về mặt hình khối kiến trúc, cũng như sự sang trọng và đẳng cấp cho không gian tiếp khách.
Đồ nội thất cũng là một điểm nhấn khá đặc biệt của công trình. Nội thất như bàn, ghế, tủ kệ được làm hoàn toàn từ gỗ tự nhiên, chạm khắc tỉ mỉ cho thấy mức độ chịu chi của chủ nhà.
Màu sắc giữa các loại vật liệu nhân tạo và tự nhiên được tận dụng một cách linh hoạt và thú vị vô cùng. Chủ nhà hoàn toàn có thể tự hào khi mời bạn bè đến dùng bữa trong phòng ăn sang trọng như vậy.

Dự trù phí xây biệt thự cổ điển có tầng hầm
Những hình ảnh sang trọng, bề thế của bản thiết kế biệt thự có tầng hầm đã hoàn toàn chinh phục chủ đầu tư và những vị gia chủ khó tính. Vậy chi phí để xây dựng một căn biệt thự 4 tầng, rộng 450m2 như vậy cần khoảng bao nhiêu? Câu trả lời sẽ được xaydungbietthubienhoa.com đưa ra trong nội dung tiếp theo của bài viết này.
Nhiều gia chủ quan tâm
- Cách tính diện tích xây dựng
- Tầng hầm: 450m2 x 150%= 675m2
- Tầng trệt: 450m2 x 100% = 450m2
- Lầu 1: 450m2 x 100% = 450m2
- Lầu 2: 450m2 x 100% = 450m2
- Tầng áp mái: 450m2 x 100% = 450m2
- Mái ngói hệ kèo: 450m2 x 70%= 315m2
===> Tổng diện tích sàn cần thi công sẽ là: 2790m2
Lưu ý: Diện tích sàn xây dựng sàn biệt thự cổ điển có tầng hầm trên chỉ mang tính chất tham khảo bởi chưa bao gồm sân vườn, ban công, khoảng thông tầng..…. nên để biết chính xác phải có bản vẽ chi tiết hoàn chỉnh.
- Đơn giá xây dựng
- Đơn giá xây dựng phần thô biệt thự lâu đài cổ điển dao động từ 3, 6 – 4 triệu/m2
- Đơn giá phù điêu, đắp chỉ dao động từ 800 – 1,2 triệu/m2
- Chi phí xây biệt thự lâu đài trọn gói dao động từ 8.000.000 – 12.000.000 triệu/m2
- Tổng dự trù chi phí xây biệt thự cổ điển có tầng hầm
- Phần thô: 2.790m2 x 4.400.000 = Khoảng 12 tỷ 276 triệu: Bao gồm phần thô + đắp chỉ+ nhân công hoàn thiện
- Trọn gói: 2.790m2 x 11.000.000 = Khoảng 30 tỷ 690 triệu: Bao gồm phần thô + nhân công hoàn thiện + vật liệu hoàn thiện (chỉ chưa có đồ rời như bàn, ghế, giường vv ….)
Như vậy để xây được một biệt thự 4 tầng, phong cách cổ điển sang trọng gia chủ đã chuẩn bị khoảng 12,3 tỷ cho phần thô và 30,7 tỷ cho phần hoàn thiện.
Lưu ý, giá phần thô chúng tôi tính dựa trên đơn giá chung nên sẽ không có sự dao động nhiều, nhưng giá hoàn thiện tùy thuộc vào cách chủ nhà chọn vật liệu nội thất là cao cấp hay trung bình mà giá sẽ có sự thay đổi. Vậy nên để biết giá chính xác, tốt nhất bạn nên đến nhờ sự tư vấn trực tiếp của các kiến trúc sư, để họ bóc tách khối lượng, ra bản vẽ chi tiết để từ đó có giá chính xác.
Ngoài ra tùy thuộc vào vị trí, thời điểm xây dựng, điều kiện xây dựng ( nền đất yếu hay không, vận chuyển vật liệu có dễ dàng hay không) mà giá xây dựng sẽ có sự chênh lệch đáng kể.
Trong quá trình xây dựng nhà rất có thể bạn sẽ bị choáng ngợp với nhiều chi phí phát sinh, vì thế tốt nhất nên tìm đến một công ty xây dựng chuyên nghiệp để được các kỹ sư, kiến trúc sư ra bản vẽ, bóc tách khối lượng và ra đơn giá chi tiết.
Các kiến trúc sư tại Thiết kế xây dựng Biệt thự Lâu đài Miền Nam có nhiều kinh nghiệm trong lĩnh vực thiết kế thi công nhà ở với kiến thức chuyên môn và gu thẩm mỹ nghệ thuật cao cam kết sẽ sáng tạo hết mình mang lại không gian sống lý tưởng nhất cho bạn và gia đình.
Hãy liên hệ với chúng tôi để được tư vấn thiết kế biệt thự đẹp và thi công xây dựng lâu đài biệt thự đẹp 3 tầng: 0915.86.63.38

