7 Tháng 10, 2021
Bởi vì ngôi nhà là tổ ấm của gia đình, nên nó phải luôn hoàn hảo, dù ở bất kì hình hài nào. Mẫu biệt thự pháp 3 tầng có sự kết hợp giữa tinh hoa nền kiến trúc Pháp, Hi Lạp với vi khí hậu và thói quen của người sở hữu tạo nên một vẻ đẹp hoành tráng, đồ sộ nhưng cũng rất thực tế.
Chủ căn biệt thự 3 tầng kiểu châu âu là một đôi vợ chồng trung niên. Anh chồng làm trong lĩnh vực xây dựng trong khi chị vợ ở nhà nội trợ. Bởi vì là người có nhiều kinh nghiệm vậy nên, yêu cầu của chủ đầu tư đối với ngôi nhà của mình cũng vì thế mà khắt khe và có phần khó tính hơn. Vậy hãy xem các kiến trúc sư đã đưa ra những lời giải hợp lý nào để làm hài lòng vị chủ nhà này nhé!

Sau khi khảo sát hiện trạng khu đất, các kiến trúc sư nhanh chóng lên phương án thiết kế căn biệt thự để kịp ngày bàn giao cho chủ đầu tư. Sau nhiều đêm suy nghĩ kết hợp với kinh nghiệm thực tế cuối cùng phương án thiết kế biệt thự 3 tầng mang phong cách Pháp cũng đã ra đời.
Theo đó bản thiết kế được nhấn mạnh vào vẻ đẹp của phối cảnh, từ tường rào cho đến cửa cổng, sân vườn đều được chăm chút tỉ mỉ và đi theo lối kiến trúc tân cổ điển đặc trưng.
Tường rào là sự kết hợp hài hòa giữa sắt mỹ nghệ và bê tông. Chính giữa là hệ cửa cổng làm bằng sắt mỹ nghệ đã qua xử lý để chống gỉ sét và cong vênh dù chịu lực tác động lớn đến thế nào.
Đi theo trường phái kiến trúc Châu Âu, các chi tiết hoa văn, phào chỉ, trụ cột trong biệt thự pháp 3 tầng đều được chăm chút tỉ mỉ. Trụ cột thiết kế nổi hoặc chìm tùy theo vị trí khiến cho ngôi nhà trông linh hoạt và vững chãi hơn.

Sảnh chính là nơi đập vào mắt khách hàng đầu tiên, vậy nên nó được đầu tư vô cùng kỹ lưỡng. Đầu tiên là hai chiếc trụ cột iconic tròn chống đỡ 2 bên. Một chiếc mái giả đắp phù điêu tỉ mỉ tạo tính thẫm mỹ đồng thời tránh nắng cho khu vực lối vào.
Hệ cửa khung gỗ và kính vừa thể hiện nét sang trọng cho công trình biệt thự 3 tầng vừa giúp phân bố không khí và ánh sáng vào trong nội thất biệt thự được hợp lý.
Là người có gu thẫm mỹ cao, xung quanh công trình các kiến trúc sư còn sử dụng thêm những bức tranh bằng đồng chạm trổ tỉ mỉ để làm hài lòng chủ nhà.Biệt thự còn được trang trí bằng hệ thống mái mansard hình thang giúp đưa nguồn nhiệt vào bên trong bớt nóng đồng thời tạo dòng đối lưu cho gió vào nhà.
Phương án bố trí công năng biệt thự pháp 3 tầng
Đối với Kiến trúc Pháp, ngoài chi tiết hoa văn trang trí cầu kỳ còn cần đến mặt bằng công năng hợp lý và phù hợp với sở thích của chủ nhà. Vì vậy trong quá trình thiết kế các kiến trúc sư đã dành rất nhiều thời gian bàn bạc, trao đổi với gia chủ để tìm ra phương án bố trí mặt bằng tối ưu nhất.

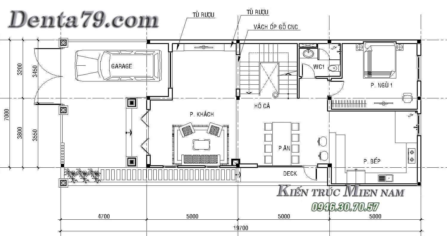
Mặt bằng tầng trệt biệt thự kiểu Pháp
Tầng trệt gồm: Phòng khách, phòng ăn, nhà bếp, phòng ngủ 1
- Là người làm ăn nên chủ nhà rất thường xuyên mời khách và đối tác đến chơi nhà. Chính vì thế phòng khách được sắp xếp ngay sau sảnh chính với nội thất sang trọng, nhập khẩu hoàn toàn từ các nước Châu Âu.
- Tiếp đó là phòng ăn rộng nhìn ra tiểu cảnh hồ cá, tạo sự thú vị trong quá trình ăn uống.
- Khu bếp nấu đặt sâu bên trong để tránh mùi và hợp với các quy tắc về phong thủy.
- Phòng ngủ 1 dành cho người giúp việc đặt cạnh nhà bếp để dễ dàng cho việc di chuyển.

Lầu 1 gồm: Phòng sinh hoạt chung, phòng ngủ 2, phòng làm việc, phòng ngủ 3, phòng ngủ 4
- Một phòng sinh hoạt chung ấm cúng đặt ngay đối diện cầu thang là nơi tạo sự gắn kết giữa các thành viên trong gia đình thông qua những buổi chuyện trò. Ở đây người vợ cũng có thể cùng con học bài, trò chuyện.
- Phòng ngủ 2 dành cho gia chủ kết nối với khu vực làm việc và nhà vệ sinh đối diện.
- Phòng ngủ 3 và phòng ngủ 4 dành cho các con của chủ nhà. Phòng vệ sinh bố trí bên ngoài, nằm cạnh cầu thang thông tầng.

Lầu 2 gồm: Sân phơi, kho, phòng ngủ 5, phòng thể dục, phòng thờ, phòng thể dục
- Phòng thờ và phòng thể dục đặt cạnh ban công nhằm nhận gió thoáng và nguồn không khí trong lành.
- Phòng ngủ 5 dành cho 2 cô con gái út, phòng gồm 2 chiếc giường bố trí song song.
- Nhà vệ sinh, phòng giặt và sân phơi đặt cạnh nhau nhằm xử lý tốt vấn đề cung và thoát nước.
Bố trí nội thất biệt thự pháp 3 tầng đẹp
Phòng khách rộng được bố trí ở vị trí đẹp nhất và liên kết với phòng ăn. Các chi tiết phào, chỉ cùng trần thạch cao góp phần thể hiện khí chất cho vị chủ nhà.
Không gian tầng 1 của mẫu biệt thự tân cổ điển đẹp hoàn toàn rộng rãi, thoải mái và sang trọng, chinh phục bạn bè và các thành viên trong gia đình.
Dành hoàn toàn thời gian ở nhà để làm nội trợ và chăm sóc gia đình, căn bếp được xem như vương quốc riêng của người vợ vậy nên tất cả chi tiết trang trí trong phòng từ tủ bếp, bồn rửa, chậu rửa bát….đều được thiết kế riêng theo sở thích của chị.
Dành hoàn toàn thời gian ở nhà để làm nội trợ và chăm sóc gia đình, căn bếp được xem như vương quốc riêng của người vợ vậy nên tất cả chi tiết trang trí trong phòng từ tủ bếp, bồn rửa, chậu rửa bát….đều được thiết kế riêng theo sở thích của chị.

Biệt thự pháp 3 tầng còn có một phòng thay đồ đẹp, khiến gia chủ tự hào. Dù nhiều đồ đạc nhưng bàn ghế, tủ kệ đều được bố trí rất hợp lý, đảm bảo các yếu tố quan trọng, cơ bản nhất trong việc bố trí nhà ở trong phong thủy.


Phòng thờ ấm cúng, mang đậm hương vị của phong cách thiết kế phương Đông với bệ thờ, tượng phật và bộ bàn ghế salon gỗ để uống trà.

- Cách tính diện tích xây dựng biệt thự 7×20
- Móng : 7 x 20 x 50%= 70m2
- Tầng 1: 7 x 20 x 100% = 140m2
- Tầng 2: 7 x 20 x 100% = 140m2
- Tầng 3: 7 x 20 x 100% = 140m2
- Mái ngói hệ kèo: 7 x 20 x 70%= 98m2
===> Tổng diện tích sàn cần thi công sẽ là: 588m2
Lưu ý: 588 là diện tích sàn xây dựng sàn biệt thự pháp 3 tầng trên tương đối bởi chưa bao gồm sân vườn, ban công, khoảng thông tầng..…. nên để biết chính xác phải có bản vẽ chi tiết hoàn chỉnh.
- Đơn giá xây dựng
- Đơn giá xây dựng phần thô biệt thự lâu đài cổ điển dao động từ 3, 6 – 5 triệu/m2
- Đơn giá phù điêu, đắp chỉ dao động từ 800 – 1,2 triệu/m2 tường mặt ngoài
- Chi phí xây biệt thự lâu đài trọn gói dao động từ 8.000.000 – 12.000.000 triệu/m2
- Tổng dự trù chi phí xây biệt thự pháp 3 tầng
- Phần thô: 588m2 x 4.400.000 = Khoảng 2 tỷ 587 triệu: Bao gồm phần thô + đắp chỉ+ nhân công hoàn thiện
- Trọn gói: 588m2 x 10.000.000 = Khoảng 5 tỷ 880 triệu: Bao gồm phần thô + nhân công hoàn thiện + vật liệu hoàn thiện (chỉ chưa có đồ rời như bàn, ghế, giường vv ….)
Như vậy để xây được một biệt thự 3 tầng, phong cách tân cổ điển sang trọng gia chủ cần chuẩn bị khoảng 2,8 tỷ cho phần thô và 5,9 tỷ cho phần hoàn thiện.
Lưu ý, giá phần thô công ty tính dựa trên đơn giá chung nên sẽ không có sự dao động nhiều, nhưng giá hoàn thiện tùy thuộc vào cách chủ nhà chọn vật liệu nội thất là cao cấp hay trung bình mà giá sẽ có sự thay đổi. Vậy nên để biết giá chính xác, tốt nhất bạn nên đến nhờ sự tư vấn trực tiếp của các kiến trúc sư, để họ bóc tách khối lượng, ra bản vẽ chi tiết để từ đó có giá chính xác.
Kết luận: Biệt thự 3 tầng phong cách Pháp được tập trung vào hình khối kiến trúc và tính đăng đối trong bố cục kết hợp với màu sắc tinh tế, nổi bật điểm nhấn mỗi mảng tường, mỗi trụ, xung quanh cửa sổ tạo nên một tổng thể đẹp, hài hòa từng chi tiết.
Các kiến trúc sư tại Thiết kế xây dựng Biệt thự Lâu đài Miền Nam có nhiều kinh nghiệm trong lĩnh vực thiết kế thi công nhà ở với kiến thức chuyên môn và gu thẩm mỹ nghệ thuật cao cam kết sẽ sáng tạo hết mình mang lại không gian sống lý tưởng nhất cho bạn và gia đình.
